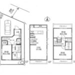
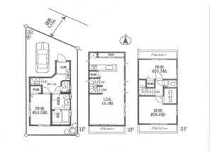
大山町の注文邸宅
古くから【徳川山】とも呼ばれ、名士に愛された街、渋谷【大山町】。知る人ぞ知る邸宅街です。高台に位置し眺望、風通しが良好な好立地物件です。
築2年のたいへん綺麗な注文住宅です。現オーナーがこだわって設計された間取りは動線や使い勝手に長けたレイアウトとなっております。また、近くには【代々木大山公園】や【玉川上水緑道】等の緑溢れる住環境も魅力の邸宅街です。前面道路も約5m強ございますので、お車もスムーズに駐車可能です。是非、ご覧にお越し下さいませ。
| 所在地 | 東京都渋谷区大山町 |
|---|---|
| 交通 | 東京メトロ千代田線代々木上原駅 徒歩7分 |
| 築年月 | 2014/04 | 新築/中古 | 中古 |
|---|---|---|---|
| 面積 | 93.15m² | 計測方式 | |
| バルコニー | m² | 向き | |
| 建物階数 | 地上3階 | 部屋階数 | 階 |
| 部屋/区画番号 | 総戸/区画数 | ||
| 建物構造 | |||
| 間取内容 | |||
| 駐車場 | 取引態様 | ||
| 引渡/入居時期 | 現況 | ||
| 土地面積 | 56.94m² | 土地面積計測方式 | |
| 周辺環境 | |||
| 設備・条件 | |||
| 物件番号 | /sc_shibuya/nc_86567444/ | ||
※物件掲載内容と現況に相違がある場合は現況を優先と致します。




