渋谷区本町1丁目 中古戸建て

(間取) (外観) (居間) (キッチン)
価格
5,680万円
中古戸建
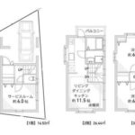
間取
2SLDK
物件について問い合わせる
所在地 東京都渋谷区本町1
交通 京王線初台駅 徒歩7分
築年月 2000/10 新築/中古 中古
面積 69.4m² 計測方式
バルコニー 向き
建物階数 地上3階  部屋階数
部屋/区画番号 総戸/区画数
建物構造 木造
間取内容
駐車場 取引態様
引渡/入居時期 現況
土地面積 44.07m² 土地面積計測方式
周辺環境
設備・条件
物件番号 /sc_shibuya/nc_87916603/
※物件掲載内容と現況に相違がある場合は現況を優先と致します。